Все вагоны поезда оборудованы биотуалетами, энергосберегающими светодиодными светильниками, электронными информационными панелями.
Отделение для багажа
Купе / Туалет для инвалидов
Бар
Электрическая розетка
Телевизор
Биотуалет
Схема вагона СВ

Схема вагона купе

Схема вагона плацкарт

Схема штабного вагона

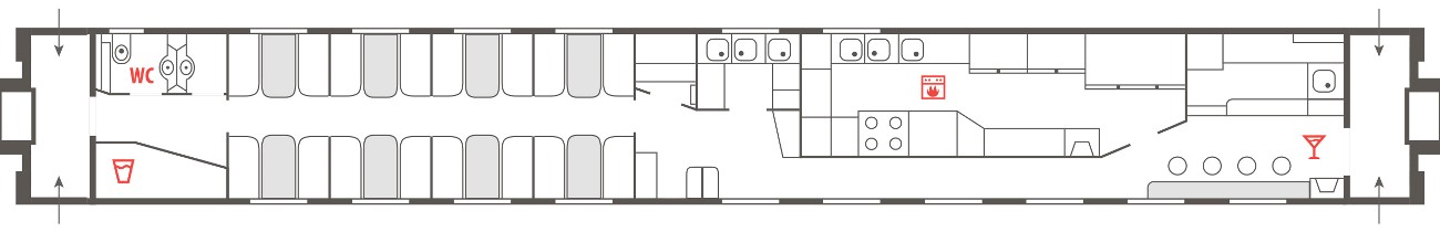
Схема вагона-ресторана
